Helaas, dit pand is verkocht

Lot bouwgrond van 686m² voor open bebouwing - Topligging - 8501 Heule

Omschrijving

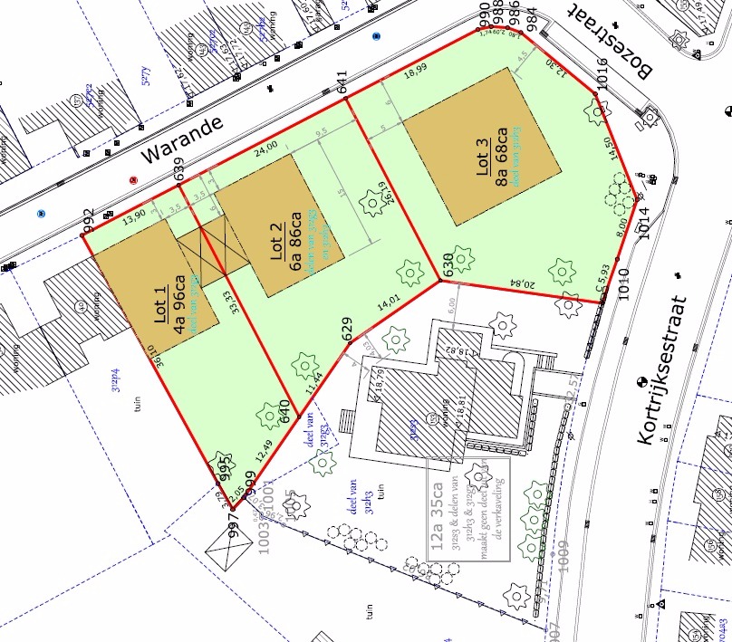
Mooi lot bouwgrond van 686m² voor een alleenstaande bebouwing in een kleinschalige residentiële verkaveling van 3 loten.


Specificaties:
- 2 bouwlagen met hellend dak of plat dak zijn mogelijk
- afstand tot de rooilijn: 3m
- mooie perceelbreedte van 24m!
- perfecte oriëntatie
- geen bouwverplichting

Topligging! Rustig gelegen tussen het centrum van Kortrijk & Heule, vlakbij alle verbindingswegen.
Het terrein wordt volledig opgekuist en bouwrijp opgeleverd. Prijs is inclusief nog nieuw te plaatsen omheiningen.

Tevens nog een naastliggend lot bouwgrond beschikbaar van 496m² voor HOB.



Voor meer info: J. Clicque 0479/27 71 92 (Ref. Heulepoort)


Niet gevonden wat u zocht? Schrijf u dan vrijblijvend in en blijf op de hoogte van ons recentste aanbod.
Schrijf u in
U gebruikt een verouderde browser. Upgrade nu naar een moderne browser om ten volle gebruik te kunnen maken van alle functies van onze site:
Chrome |  FireFox |  Opera |  Safari |  Microsoft Edge
Terug naar boven
Sluit menu Immo Pottelberg