Helaas, dit pand is verkocht

8550 Zwevegem

Omschrijving

OPBRENGSTEIGENDOM - 3 ruime appartementen nabij het centrum

Interessante opbrengsteigendom bestaande uit 3 appartementen. Telkens 1 appartement per verdieping.

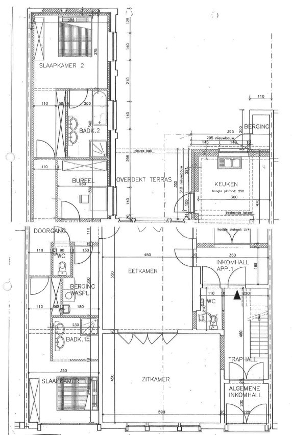
Gelijkvloers:
Zéér ruim appartement van +/- 170m², ruim Z/W gericht terras/tuin. Appartement bestaande uit leefruimte met aparte keuken, 2 badkamers en 3 slaapkamers. Epc 276 UC1819413 label C

1e verdieping:
Tevens ruim appartement met open leefruimte met keuken, 2 slaapkamers & badkamer. Epc 126 UC 2163907 label B

2e verdieping:
Dakappartement met 2 slaapkamers & badkamer. Epc 182 UC 2163919 label B

-Huuropbrengst +/- 2000 €/maand.
-Elektriciteit blanco gekeurd.
-Conformiteitsattest aanwezig
- Aparte tellers
- CV op aardgas

Gelegen nabij het centrum. Geen syndic.

Voor meer info bel of mail Jasper: jasper@immopottelberg.be - 0479/27 71 92


Niet gevonden wat u zocht? Schrijf u dan vrijblijvend in en blijf op de hoogte van ons recentste aanbod.
Schrijf u in
U gebruikt een verouderde browser. Upgrade nu naar een moderne browser om ten volle gebruik te kunnen maken van alle functies van onze site:
Chrome |  FireFox |  Opera |  Safari |  Microsoft Edge
Terug naar boven
Sluit menu Immo Pottelberg